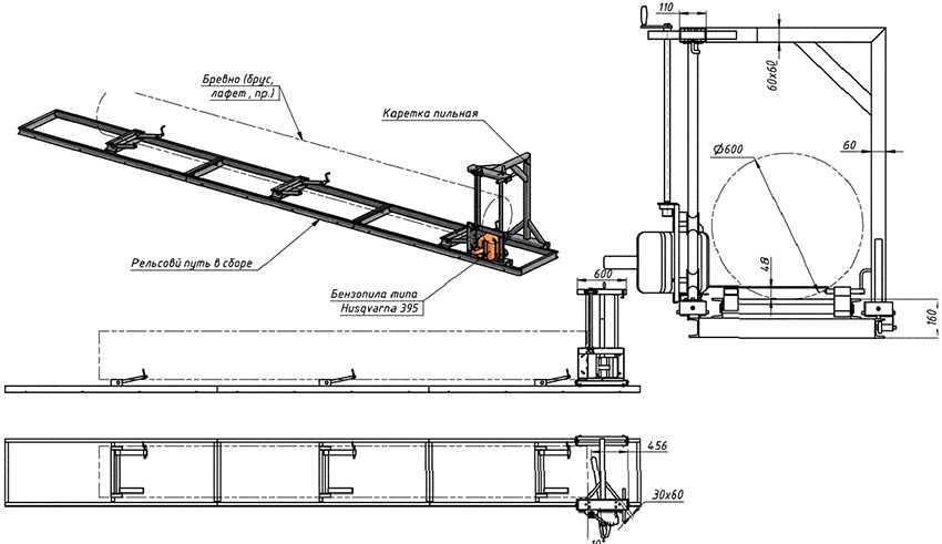
Особенности пилорамы
Обычно на распиловку с помощью пилорамы идут дикие бревна. Они имеют неправильную форму и неравномерную структуру. Поэтому их фиксируют в статичном положении, а распил осуществляется кареткой с пилящим инструментом. В противном случае обеспечить ровный распил будет очень тяжело. Исключением являются большие промышленные пилорамы, где пила неподвижна, а бревна подаются на режущий элемент гидравлическим прессом.
Важно! Распил длинного бревна продольным способом всегда ведется от низа ствола к его верхушке. В противном случае любая пила застрянет, либо сломается
В общем, станок для распиловки древесины состоит из таких частей:
- Режущий элемент — пила.
- Двигатель, приводящий в движение режущие части.
- Каретка для подачи пилы на древесину.
- Направляющие для каретки.
- Лафет для фиксации древесины и блок подачи бревен.
- Станина, скрепляющая все части в единую конструкцию.
В зависимости от конструкционных особенностей, некоторые части могут совмещаться между собой. Так, например, бензопила, часто используемая в самодельных пилорамах, объединяет в себе режущую часть и привод.

Для крупных промышленных лесозаготовительных объектов используются сложные конструкции со специально разработанными для этой цели приспособлениями и пилами. В домашнем хозяйстве нет необходимости в таких ухищрениях. Как правило, используются подручные материалы, способные распилить среднее бревно на бруски.
Далее мы рассмотрим, из каких подручных приспособлений можно сделать пилораму в домашних условиях своими руками.
Как изготовить

Рассмотрим более детально, как самостоятельно изготовить пилораму из обычной бензопилы на примере стационарной конструкции.
Что потребуется
Для работы потребуются следующие материалы:
- Бензопила.
- Сварочный аппарат.
- Металлические трубы квадратного сечения.
- Металлические угольники.
- Ролики.
Мнение эксперта
Куликов Владимир Сергеевич
Если нет квадратных металлических труб, можно использовать вместо них обычные водопроводные. Только в этом случае необходимо подобрать трубы достаточной прочности. Но лучше всего использовать металлические швеллеры, если есть такая возможность. С ними удобнее работать при монтаже, да и зафиксировать их можно более надежно.
Процесс изготовления
Для изготовления устройства придется выполнить следующие действия:
- Собрать основание будущей пилорамы из труб и уголков. Сразу монтировать конструкцию не нужно. Сначала надо сложить ее и проверить, насколько ровно соединены все элементы. Делают это при помощи уровня. Только после этого трубы соединяют между собой при помощи сварки.
- Когда прямоугольник основания собран, для большей прочности конструкции его необходимо укрепить как минимум двумя стяжками. Изготовить их можно из тех же металлических труб. Стяжки крепят поперечно на равном удалении друг от друга. Лучший вариант крепления – болтовое.
- Затем поверх труб, из которых собрано основание конструкции, наваривают более тонкие трубы или металлопрофиль. Они будут служить направляющими для распиливаемых бревен и не позволят им свалиться с пилорамы. Также приваривают поперечные направляющие. В идеале они должны вращаться – это обеспечит более плавное движение бревна и минимизирует усилия, которые необходимо прикладывать во время работы устройства.
Без поперечных направляющих можно обойтись, если вы использовали круглые в сечении стяжки из труб. Бревно тоже будет передвигаться по ним достаточно легко. Но нужно помнить, что его движение будет не таким легким, как в случае с вращающимися поперечными направляющими.
- После того, как основание полностью готово, его устанавливают на стойки. Лучше всего на их роль подойдут стальные угольники. Их приваривают в углах основания. Для большей прочности конструкции между стойками можно приварить раскосы.
- После собирают тележку для режущей части. Она представляет собой прямоугольник из металлических труб, опирающийся на две продольные стальные полосы. Между этими полосами и стенками прямоугольника устанавливают по два откоса, чтобы конструкция была устойчивой. Под полосами размещают ролики, которые будут обеспечивать перемещение режущей части по основанию. Затем к одной из полос приваривают еще одну трубу, соединив ее сверху с прямоугольником. Это – место крепления для пилы.
- Когда тележка готова, закрепляют пилу. Сделать это можно самыми разными способами. Самый распространенный способ – фиксация корпуса пилы с помощью струбцин или металлических стяжек. Он достаточно надежен и не причиняет необратимых повреждений устройству. При необходимости к тележке доваривают дополнительные поперечные планки из тех же труб, из которых были изготовлены остальные части конструкции.
Существует и другой способ фиксации пилы – за полотно, на котором закреплена цепь. Он менее надежен, требует рассверливания полотна и хуже фиксирует бензопилу. Однако при таком способе монтажа цепь пилы меньше вибрирует (большая часть вибрации передается на основание пилорамы) и делает более ровные срезы.
Этапы самостоятельного изготовления
Лесопилка нуждается в наличии специального деревообрабатывающего оборудования — пилорамы. Можно купить ее уже готовую в магазине, но это будет стоить довольно дорого. Поэтому вопрос, как сделать пилораму в домашних условиях, остается актуальным.
Самодельное устройство из бензопилы
Приспособление для распиловки бревен бензопилой своими руками — наиболее распространенный вариант изготовления этого типа оборудования дома. Процесс занимает немного времени, а самоделка способна работать длительное время без ремонта.
Для работы понадобятся такие материалы:
- сварочный аппарат с электродами;
- шурупы;
- гвозди;
- столбики;
- электропила;
- роликовые подшипники.
Перед тем как сделать пилораму своими руками, специалисты советуют обратить внимание на такие моменты:
- Если планируется распиливать бревна большого диаметра, необходимо для работы использовать более мощные пилы с длинной цепью и шиной.
- Для подачи тяжелой древесины необходимо предусмотреть наличие специального домкрата. Доска же будет приниматься посредством использования погрузчика.
- При работе необходимо продумать механизм для фиксации бревен. Это предупредит вибрацию рабочего материала.
- Бензопила должны быть довольно мощной, что поможет сделать распиловку быстрее и проще.
- Станок рекомендуется оборудовать электрическим двигателем. Это поможет сэкономить затраты на производство.
- Приспособление для бензопилы продольной распиловки своими руками должно иметь такую высоту, при которой у оператора не будет уставать спина и руки.
Самодельная пилорама из бензопилы, чертежи которой можно найти в специальной литературе, довольно проста в изготовлении. Изготовление проводится по такой схеме:
- Создать каркас посредством сваривания уголков или труб в конструкцию необходимого размера;
- Для выполнения салазок можно использовать деревянные доски, которые в месте движения салазок покрываются оцинкованным листом или нержавейкой. Можно также использовать для этого уголок, по которому будут двигаться ролики. Есть также возможность выполнения этого устройства из рельсов. Все зависит от нагрузки, которой будет подвергаться станок;
- Изготовить салазки можно из 50 мм доски;
- Изготовление механизма, который будет регулировать толщину доски. Можно использовать вариант, который предлагают специалисты компании «Логосоль». В нем происходит движение рабочего материала, а режущий элемент закреплен неподвижно. Такая конструкция подходит для работы с небольшими бревнами.
Можно также использовать вариант, при котором бревно остается неподвижным, а режущая часть станка двигается по специальной линейке. Монтаж бензопилы выполняется при помощи специальных креплений на станине оборудования.
По завершении работы необходимо проверить прочность станка и выполнить наладку его функций.
Приспособление из болгарки
Есть также возможность изготовления пилорамы в домашних условиях, основой для которой служит болгарка. Этот вариант станка обладает практичностью эксплуатации и простотой выполнения. Для выполнения оборудования можно придерживаться такой инструкции:
- Упор изготавливается из уголков, расположенных по сторонам каркаса. Их края необходимо закруглить.
- На корпус надевается хомут из металла и закрепляется винтами по краям.
- Ручка выполняется самостоятельно из металлического прута, трубы или поперечной скобы.
- Для выполнения регулировочной штанги можно использовать стальной прут диаметром 0,4 — 0,6 см. Его конец загибается в виде петли.
- Чтобы обеспечить вхождение штанги в ручку, необходимо на задней части ручки нарезать небольшую резьбу.
Болгарка представляет собой углошлифовальную машинку. Поэтому необходимо учитывать такие моменты:
- Продолжительность непрерывного использования самодельной пилорамы из болгарки не должна превышать 20 минут, чтобы избежать перегревания мотора станка;
- Стандартная защита диска не подходит для самодельного устройства. Необходимо изготовить защитный кожух своими руками.
Перед началом эксплуатации этого вида пилорамы, мобильный цепной механизм нуждается в предварительной проверке и регулировке. Глубину пропила можно отрегулировать при помощи гаек, которые или затягиваются, или отпускаются. Ручной вариант пилорамы отличается простотой конструкции. Это значительно упрощает работу с ней.
Originally posted 2018-07-04 07:46:16.
Пилорама из бензопилы своими руками: видеоинструкция и чертежи
Имея в наличии чертежи и изучив видеоинструкцию, самостоятельно изготовить конструкцию для обработки бревен, досок и реек довольно просто. Перед началом работ необходимо выбрать подходящее место. Установить пилораму из бензопилы можно в старом сарае, гараже, ангаре или даже просто под навесом. Если помещение для агрегата будет закрытым, то следует позаботиться о вытяжке.
Пилорама из бензопилы — вариант №1
Для изготовления конструкции кроме бензопилы понадобятся:
- два швеллера длиной в 8 метров и высотой в 140-180 миллиметров;
- две рельсы;
- уголки 50х100 мм и 40х40 мм;
- отрезки водопроводной трубы в 25 см в качестве стяжек;
- плита из стали толщиной в 4-6 см и длиной в 60 см;
- подвижные шланги;
- трубы с диаметром в 35-40 мм.
Изготовление своими руками пилорамы следует начинать со сборки основания
из перевернутых подошвой вверх рельс и уголков 50х100 мм. Устанавливаться они должны строго параллельно полу, поэтому нужно воспользоваться строительным уровнем.
- По длине основания, согласно чертежу, сверлятся отверстия с шагом в 1-1,5 метра и диаметром в 14-16 мм.
- Затем по количеству отверстий берутся стяжки, которые соединяются при помощи болтов.
- Из металлических угольников изготавливаются стойки и на них ставится основа. Расстояние между крайними стойками и основой должно быть около 100 см.
- Чтобы конструкция была более жесткой, раскосы между стойками можно приварить.
После того как основа будет выполнена и установлена, необходимо своими руками сделать подвижную тележку. Для этого снизу стальной плиты приваривается уголок
40х40 мм и изделие ставится на ролики или подшипники. Сверху плиты приваривается два уголка, к которым крепится бензопила.
На последнем этапе работ по изготовлению самодельной пилорамы необходимо сделать конструкцию для фиксации бревен. Для этого подвижные шланги и трубы следует расположить на необходимой высоте и закрепить их.
Первый вариант самодельной пилорамы из бензопилы готов. Существует еще один способ изготовления своими руками агрегата для обработки древесины. Инструменты и чертеж для него понадобятся те же, однако, сама конструкция более доработана.
Пилорама из бензопилы своими руками – вариант №2
Состоит конструкция из четырех главных узлов:
- Пилы с приводом.
- Механизма для регулирования толщины изготавливаемой доски.
- Механизма для передвижения пильной части конструкции.
- Устройства для фиксации бревен.
Так как бензопила с рабочим двигателем и режущими зубьями в уже есть в наличии, необходимо будет сделать своими руками только оба механизма и устройство для фиксации бревен.
Механизм для регулирования толщины досок.
Распиливаются бревна посредством поднимания или опускания основания, которое должно быть приварено к пластине с помощью четырех гаек с согнутыми краями. Вверху этого устройства необходимо установить контргайки
, которые нужно затягивать после того, как агрегат будет настроен на нужную толщину обрабатываемого материала.
Механизм для передвижения пилы.
Пила в конструкции перемещается вдоль рамы по направляющим уголкам, расстояние между которыми должно быть в 50 см. К стойкам необходимо приварить два ролика или подшипника
на 20 мм. Нижний ролик должен удерживать пилораму от подъема, а верхний следует опереть на направляющий уголок.
Устройство для фиксации бревна.
На таком агрегате бревна крепятся с помощью двух гребней
– неподвижного и перемещающегося посредством винта. После того как материал для обработки будет установлен, перемещающийся гребень винтами закрепляется в неподвижном состоянии. Теперь можно начинать смело эксплуатировать самодельную пилораму, выполненную из бензопилы.
Пилорама – это имеющий внушительные размеры достаточно опасный в работе агрегат
, поэтому перед началом его сборки следует тщательно продумать место его эксплуатации. Оно должно быть хорошо освещенным, проветриваемым и иметь свободное пространство. Значительно облегчит процесс обработки материала находящийся рядом склад для готовых досок.
Для пилорамы с электрическим двигателем следует очень внимательно устанавливать необходимые переключатели и автоматы, а также делать монтаж проводки.
Так как наиболее опасными элементами агрегата являются все его режущие и подвижные части, то при сборке конструкции именно им следует уделить особое внимание. Перед началом эксплуатации собранного оборудования необходимо проверить все крепления и узлы, а также устойчивость конструкции
Перед началом эксплуатации собранного оборудования необходимо проверить все крепления и узлы, а также устойчивость конструкции.
Самодельная ленточная пилорама
Самостоятельная сборка сложного агрегата — процесс непростой. Необходимо правильно установить и подогнать все детали конструкции, чтобы обеспечить их слаженную бесперебойную работу. В этом поможет инструкция, как сделать самодельную пилораму, следуя которой, можно обзавестись собственным домашним деревообрабатывающим комплексом.














Для сборки пилорамы следует выделить и подготовить подходящую площадку. Затем начинается сборка каркаса будущей конструкции. Вначале готовятся своеобразные рельсы, по которым будет при помощи роликов двигаться работающая пила. Рельсы скрепляются между собой профильными трубами, играющими роль шпал. К ним привариваются крепежи для фиксации бревен.

На следующем этапе монтируется тележка, на которой устанавливаются специальные колеса для ленты. Многие умельцы, собирающие самодельные ленточные пилорамы своими руками, догадались приспособить для этих целей старые автомобильные колеса.

Заканчивается сборка конструкции установкой электродвигателя, соединяющегося с подвижным механизмом при помощи приводного ремня.

Мотокультиватор, снегоуборщик, ледобур и буроям своими руками
Мотор из бензопилы отлично подойдет и для создания мотокультиватора, предназначенного для вспашки целины (для легких грунтов). Для работы с плотными и влажными почвами мощности и крутящего момента двигателя скорее всего не хватит, а вот для взрыхления поверхностного слоя и удаления оставшихся в земле корней бурьянов культиватора из бензопилы будет достаточно. Главной деталью устройства является вращающаяся фреза, за счет которой и происходит передвижение техники по участку.
Чертеж снегоуборщика выполненного своими руками с применением бензопилы.
Если в культиваторе заменить вал с лемехами на шнек, а также оснастить конструкцию заборным устройством и трубой для откидывания снега, культиватор превращается в снегоуборочную машину. Мотора от любой пилы мощностью 3-5 лошадиных сил будет более чем достаточно для уборки рыхлого снега на участке
Важно только выполнить удобный шнековый механизм. Для этого чаще всего применяются лопасти, изготовленные из толстой резины
В качестве заборного устройства подойдут детали из оцинкованной стали. Выброс снега легко осуществить, установив пластмассовую трубу большого диаметра.
Бурить лед или промерзшую землю ручным инструментом – довольно долгое и физически сложное занятие. Создание мотобура своими руками значительно упростит выполнение этой задачи. В этом случае, помимо мотора, необходимо иметь редуктор, регулирующий количество оборотов в минуту, потому как такого сильного вращения, как у бензопилы, устройству не требуется.
На заметку! Если не имеется достаточного количества знаний относительно работы редуктора, можно обратиться за помощью к инженеру, который поможет правильно выбрать нужный механизм. Необходимый тип прибора подбирается в зависимости от характеристик мотора.
Для создания мото- или ледобура своими руками, первое, что потребуется сделать, – выполнить надежный корпус, представляющий собой усеченную пирамиду, состоящую из двух прямоугольников различных размеров. Понадобятся болгарка, сварочный аппарат и металлические трубы. Именно внутри этой рамы и будет устанавливаться редуктор, соответственно, габариты корпуса напрямую будут зависеть от размеров редуктора.
Буроям из бензопилы станет незаменимым помощников в хозяйстве.
Для надежности специалисты рекомендуют в качестве шнека взять деталь от хорошего мотобура, выполненную из прочной стали, потому как низкокачественный материал не выдержит больших нагрузок. Другой важный вопрос – надежное крепление бура, которое можно осуществить при помощи обыкновенной трубы, зафиксированной с двух сторон шпонками или шпильками. Такой способ крепления позволит менять буры или использовать другие приспособления для работы.
Как сделать лебедку и пилораму из бензопилы своими руками
Самоделки из «Урала» часто помогают и в строительстве. Так, при возведении зданий из цельного леса приходится распускать бревна на брус. Пилорама из бензопилы «Урал» дает возможность выполнить это действие максимально быстро, аккуратно, сохраняя точность реза. Главное преимущество – отсутствие необходимости выполнять какие-либо сложные переделки. Приспособление просто требуется надежно закрепить в самодельной раме, которая может быть изготовлена из металлических уголков или профильных труб. Бревно для обработки затем уже укладывается на подготовленные направляющие.
Схема изготовления пилорамы из бензопилы своими руками.
Создавать чертежи пилорамы из бензопилы своими руками не придется, потому как в сети доступно большое количество идей, подходящих даже для человека без опыта.
Безопасность использования конструкции обеспечивается тем, что не нужно самостоятельно передвигать бревно. Для этой цели служит каретка с пилой, которая, в зависимости от толщины бревна, закрепляется на необходимой высоте. После включения рама перемещается точно, а срез остается аккуратным и получается ровным. Можно эксплуатировать устройство не только для цельного бруса, но и для распиловки доски, с целью заготовки дров.
На заметку! Нужно быть готовым к тому, что в процессе работы будет образовываться большое количество опилок, так как для распиловки используется цепь значительной толщины.
Самодельная лебедка также станет хорошим помощником при строительстве, потому как с ее помощью получится легко поднимать грузы на высоту, перемещать спиленное дерево. Кроме того, применяя лебедку, удастся вытащить застрявшую машину или вытянуть из воды на берег катер. Эффективность работы будет зависеть от передаточного числа редуктора, в некоторых моделях показатель может достигать 1,5 т.
Пилорама из бензопилы позволит легко и быстро превратить бревна в брус.
Чтобы прибором было удобно пользоваться, потребуется выполнить прочную раму, используя сварочные работы. На раме следует прочно закрепить мотор, редуктор и барабан с системой торможения. Для фиксации рамы на корпусе следует предусмотреть отверстия и проушины, через которые можно будет установить прибор на любую поверхность.
Что нужно предусмотреть?
Перед изготовлением нужно обратить внимание на следующие вещи:
- Диаметр распиливаемых бревен, если будут большие диаметры, то нужна более мощная пила, более длинная шина с цепью;
- Загрузку тяжелых бревен на распиловку, для этого нужно обязательно предусмотреть какой то механизм, или может закатывать их или дополнительные домкраты или в идеале погрузчик;
- Бревно должно фиксироваться, чтобы во время распиловки оно не играло и доски были ровными;
- Направляющая для бензопилы и салазки не должны играть, поэтому их нужно усиливать;
- Чем мощнее пила, тем легче будет осуществляться производство. Поэтому приобретая пилу нужно брать максимально мощную;
- Использования электричества в качестве источника энергии позволяет хорошо сэкономить;
- Не забываем что цепь должна быть для продольного пиления, это позволит значительно поднять скорость процесса. Специалисты рекомендуют использовать цепь 3*8.
- Цепь желательно покупать твердосплавную. Этим на сегодня занимается компания «Штиль». Обычные цепи выходят из строя достаточно быстро;
- Длину распиливаемых бревен, нужно учесть максимум и минимум. Чтобы максимально длинные входили, а минимально короткие не проваливались между направляющими;
- Рассчитывать таким образом, чтобы пила во время работы не вибрировала и не играла на направляющих;
- Мощность пилы, в некоторых случаях хочется и помощнее и по экономнее. В таком случае народные умельцы делают следующее. Вместо бензопилы ставят электромотор, а шину оставляют для распиловки, смотрите фото ниже;
- Высоту пилорамы. Нужно предусмотреть таким способом, чтобы и спина не болела наклоняться и бревна высоко не нужно было поднимать. Если лес будет не тяжелым, лучше делать ее повыше. Если лес тяжелый, можно и по ниже.
- Распиловка леса может осуществляться как верхней частью шины, так и нижней. При распиловке нижней частью, опилки летят в сторону бензопилы и забивают ее. Верхняя же часть выкидывает опилки от бензопилы, это позволяет увеличить как сам срок эксплуатации пилы, так и время простоев во время пиления;
- В процессе пиления, цепь очень часто на пиле растягивается и нуждается в натяжке. Поэтому при установке пилы нужно обязательно предусмотреть доступ к натяжке цепи и закрепить пилу с доступом к механизму;
- При пилении лучше фиксировать положение рукоятки бензопилы, это упрощает процесс;
- Тросик, бельевая веревка или шнурок не должен тянуться, так как процесс пиления должен быть равно мерен во времени.

Разновидности пилорам
Наибольшее распространение на сегодняшний день получили следующие три типа приспособлений для распиловки бревен бензопилой своими руками, которые отличаются своей конструкцией:
- Шинная.
- Ленточная.
- Дисковая пилорама.
https://youtube.com/watch?v=XR_TrDiAqQU
Дисковые установки
Относительно простая конструкция дисковых установок позволяет с легкостью выполнять их большинству домовладельцев. Благодаря своей простоте сборки и многофункциональности такие разновидности деревообрабатывающих станков получили наибольшее распространение и встречаются повсеместно. Основой такой конструкции станет дисковая пила, которая устанавливается на шпинделе электрического двигателя. Дополнительно изготавливается прочное основание, над или под которым закрепляется вал с пилой и электродвигатель.
Прочная и надежная станина дисковой установки может быть выполнена из металлических или деревянных частей, которые свариваются или скрепляются друг с другом гвоздями и саморезами. Рабочий стол можно выполнить из листового металла, необходимо лишь обеспечить идеальную геометрию конструкции, что позволяет гарантировать максимально возможное качество распила древесины.
Использование дисковых пилорам позволяет выполнять рейки различного размера, изготавливать брус, шпон, нарезать доски с необходимой длиной и шириной. Благодаря высокой скорости вращения пилы удается обеспечить распил бревен с ровными качественными краями и срезами.
Пилорама ленточного типа
Установки ленточного типа сочетают простоту конструкции и отличную производительность. Соответственно, они пользуются популярностью не только в быту, но и широко применяются на лесопилках и предприятиях, которые занимаются производством пиломатериалов. К преимуществам оборудования данного типа можно отнести его высокую производительность, а также возможность осуществления распила крупных бревен, вес которых превышает 300 килограмм.
Для изготовления пилорамы ленточного типа потребуется следующее:
- Шкивы.
- Швеллер.
- Металлические уголки.
- Трубы с различным диаметром и размером.
- Металлоконструкции для изготовления шпал.
Изготовление такой пилорамы начинается с выполнения станины, которая имеет вид буквы П и изготавливается из уголка или швеллера с размерами 50 на 100 миллиметра. Стандартными размерами станины является длина 8 метров и высота не меньше 15 сантиметров. Для повышения прочности основы дополнительно швеллеры стягиваются трубами и уголком, что позволит выдержать основанию максимально возможную нагрузку.
Далее приступают к выполнению мобильной тележки. Для этого используется стальная плита, толщина которой составляет 40 миллиметров. За привод тележки будет отвечать электродвигатель, мощность которого должна составлять 10−12 кВт.
К тележке цепным приводом крепят пилу, которая через шкив фиксируется на валу электромотора. Сбоку от подвижной тележки приваривают ручку-штурвал, который будет отвечать за перемещение мобильной конструкции по неподвижному основанию.
https://youtube.com/watch?v=MVx1lq1COng
Шинные пилорамы
Шинные пилорамы или логосоли по своему устройству отличаются от других аналогичных устройств. С помощью такой ручной техники можно осуществлять продольную распиловку бревен, изготавливая качественные рейки и шпон. Благодаря компактным габаритам логосоль может быть установлена как на открытом воздухе, так и внутри небольшой мастерской или деревянного сарая. На такой пилораме можно будет не только осуществлять распил бревен, но и изготавливать небольшие по своим размерам заготовки с нестандартной формой.
Имея на руках качественную схему пилорамы и правильно подобрав длину полотна от бензопилы, можно самостоятельно выполнить такой станок, который будет обеспечивать качественную распилку бревен. Можно будет определиться с тем, как сделать пилораму своими руками, сэкономив на покупке компонентов для техники.
Облегченная насадка и дебаркер
С использованием продольной распиловки бревен разобрались, и можно перейти к облегченному методу. Он действительно очень прост в использовании, так как с одной стороны происходит крепление элемента. Однако данный метод обладает более низкой производительностью, если сравнивать с первым. Кроме того, доски будут получаться несколько неровные, а потому обычно их используют для второстепенных строений.
Еще одна насадка – это барабанный дебаркер, или же окариватель. Технология распиловки бревна на доски бензопилой предусматривает использование данной насадки как одной из наиболее подходящих для роспуска материала. Работает она за счет клиноременной передачи. Крепится насадка к обоим ремням, а для ее фиксации имеются в наборе специальные шкивы. Что касается скорости вращения, а следовательно, и производительности, то она напрямую зависит от размера этих самых шкивов. Благодаря этому изменить в нужную сторону скорость работы не составит труда.
Как правильно распилить бревно бензопилой на доски? По отношению к работе с данной насадкой вопрос наиболее актуален, так как во время ее эксплуатации очень важно следить за ходом работ, для чего опытные мастера даже могут привлекать помощников

Какие бывают пилорамы из бензопилы?

Портативная пилорама, переделанная из бензопилы, внешне выглядит, как тачка на колесиках , которую необходимо двигать руками. Передвигается приспособление по рельсам. Различают два вида конструкции, которые различаются использованием различных видов пил.
Вариант на основе цепи применяется для распиливания стволов деревьев на бруски. Недостатком применения такого варианта является множество опилок после работы, что свидетельствует о неэкономном использовании сырья.
Ленточные пилы приспособлены для распиливания бревен большого диаметра
Во время эксплуатации такого аппарата следует соблюдать максимальные меры предосторожности, так как радиус вылета опилок довольно большой. Для предотвращения травмирования желательно использовать стружкоотсос с гибким воздуховодом.
Подобные пилы используются в промышленности, а для бытового использования достаточно небольшой пилорамы. Малые габариты являются дополнительным плюсом, так как самоделка будет портативной и не займет много пространства в помещении, а в случае необходимости ее легко можно перетащить в другое место.
Как выбрать двигатель для самодельной пилорамы?
Двигатель – это основа пилорамы, поэтому к выбору его характеристик нужно отнестись с особой ответственностью. В первую очередь потребуется разобраться в том, какой тип мотора подойдет для сборки самоделки. Лучшим решением всегда был и остается стандартный бензомотор. Электрические двигатели не обладают достаточной мощностью и тягой. К тому же не все цепные электропилы комплектуются качественной защитой от пыли и влаги, а ведь именно они постоянно сопровождают роспуск бревен на доски.
Второй важный фактор – это мощность двигателя бензопилы. Именно от этого параметра зависит возможность мотора распиливать бревна в продольном направлении. Чаще всего для изготовления самодельной пилорамы используются мощные бензиновые двигатели, коленчатые валы которых вращаются на скорости не менее 12000 об/мин. При этом мощность мотора обязательно должна составлять не менее 5 л. с.
Третий фактор – это антивибрационная система. В процессе работы любой мотор создает колебания, которые влияют на ровность линии распила. Чтобы мини-пилорама производила идеально ровные доски, бензопила для ее сборки должна комплектоваться эффективной антивибрационной системой.

























































